在现实的生产与生活中,经常会涉及到结构的加固改造,这样就避免不了会在楼板上进行开洞。楼板开洞后局部切断了原有传力路径和配筋,一方面促使洞口周边板的内力增大,会造成应力集中,另一方面板筋减少,承载力降低,需要根据实际情况进行有效的加固。
当垂直于板受力方向的洞口宽度b≤300mm或孔洞直径D≤300mm,且切断钢筋数量≤5%时,可不做处理。当b≤1000mm或D≤1000mm,切断钢筋数量≤20%,且开洞后对板的受力影响小,仅按构造加固时,可采用补偿配筋法,将板中切断的钢筋(Asfy),补设于洞口边。为便于施工,一般采用粘钢或碳纤维布作为后补偿筋,其总量应≥1.2(Asfy)。当超出以上情况时,则需要通过设计计算采用合适的型钢边梁或现浇混凝土边梁进行加固方法。

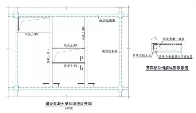
粘钢加固 现浇连续板开洞,当开洞位置位于板的负弯矩区时,采用粘钢作为补偿加固时,应双面加固。对于粘贴钢板加固法,受力较大方向宜粘贴在最外层(其含义就是最后粘贴),受力较小方向钢板钢板粘贴于里层(最先进行粘贴)。此时,先粘钢板应于混凝土贴面处开槽,开槽厚度≥钢板厚度+3mm,以保证先粘钢板面与楼板地面齐平。亦可双向齐平粘贴,但需将受力较小方向钢板切成三段,现场焊接,局部后灌胶粘剂。 碳纤维加固 现浇连续板开洞,当开洞位置位于板的负弯矩区时,采用粘接碳布加固时,也应进行双面加固,纵横纤维布粘贴先后顺序可不受限制。 a、碳布选用规格采用宽为200mm~300mm,质量为200g~300g。 论是承担负弯矩的板面钢板还是碳布,都会因墙体阻挡,无法贯通,此时可采用螺杆及短角钢穿墙拉结锚固传递拉力。对于框架结构现浇楼板角区开洞,承担负弯矩的板面钢板或碳布,都应弯折锚固与边梁外侧,并满足锚固长度要求。 在对现浇楼板开洞改造时,开洞楼板的刚度与强度较不开洞时会有不同程度的削弱,一般来说,刚度的削弱更为明显,在洞口短边或转角处会出现较大的应力集中,板面筋的减少,导致承载力降低,因此应对开洞后的楼板进行内力分析和承载力验算之后,再结合楼板性质(梁式楼盖、无梁楼盖、简支板、连续板、单向板、双向板)、开涧部位(边缘、中部)、开洞大小及形状等差异,分别采用合适的加固处理方法。 采用这两种方法需注意板的负弯矩区开洞时应在板的上部与下部以双面加固的形式加固,同时要保证端部的锚固措施。 增设混凝土边梁 当楼板开洞进一步扩大,导致洞口宽度或洞口直径大于1000mm,或切断钢筋数量超过20%时,以及洞口存在较大集中荷载、预制板切断主肋等情况下,仅靠碳纤维布或钢板起到的加固作用将非常有限,应改变传力路径以减少应力集中对楼板受力产生的不利影响。改变应力传递可采用洞口处新增梁进行支撑传递,采用此方法时需要注意原结构纵横向框架梁是否需要加固,以及保障剪力的有效传递。 增设型钢梁 后凿的洞口一般都要翻边,洞口的钢筋剪断向上弯起,把洞边凿毛做翻边,翻边高度不小于100mm,厚度不小于80mm,翻边混凝土强度等级不低于原混凝土板的强度等级。在洞边放置的钢梁,可采用工字钢、槽钢或角钢,具体用量根据计算确定。 钢梁之间的连接,采用普通螺栓或高强度螺栓进行连接,C-C剖面所示为钢梁与混凝土梁(柱)的连接,采用化学螺栓或膨胀螺栓把连接板固定在混凝土梁(柱)上,连接板厚度不小于10mm,采用普通螺栓(或高强度螺栓)把钢梁与混凝土进行连接。 施工时需要注意:凿洞口时必须轻打,不得用重锤猛击,以防洞口边破裂;必须把楼板底粉刷层铲除;为了使钢筋混凝土与钢梁贴紧,在钢梁与楼板之间打入钢架,钢楔打入后与钢梁电焊牢固。 总结 建筑结构受力复杂,且事关生命安全,侥幸心理切不可取。楼板打洞无论大小,都会对结构整体性造成一定的影响,以及对楼板承载力造成一定的损害,只有重视后期的加固处理,选择适当的加固技术与优质安全的加固材料,才能从长远保障结构安全。 本文链接:http://www.shhorse.com/Article/hmqtlbjgyk_1.html 
b、开洞较小,构造加固才可采用此加固方法。
c、补偿钢板面积不得小于截断钢筋的等效截面面积的1.2倍。
b、开洞较小,构造加固才可采用此加固方法。
c、补偿碳布最大拉力值不得小于截断钢筋的等效拉力值的1.2倍。
d、碳布与钢板接触时应涂胶粘剂一层,不可直接接触。 
最新产品
同类文章排行
- 《混凝土结构加固设计规范》(GB50367-2013完整版)
- 《建筑结构加固工程施工质量验收规范》GB 50550-2010完整版
- 《工程结构加固材料安全性鉴定技术规范》GB50728-2011完整版
- 《建筑设计防火规范》GB50016-2014(2018版)悍马加固材料
- 《建筑设计防火规范》GB50016-2014局部修订条文-悍马加固材料
最新资讯文章
您的浏览历史








