
随着路桥建设事业的不断飞速发展,我国公路桥梁的养护、维修、加固及技术改造任务也日益加大,在众多针对桥梁结构的维修加固技术中,预应力碳纤维板加固桥梁技术作为一种新型的桥梁加固技术,已经得到了日益广泛地关注。
预应力碳纤维板加固桥梁技术,是利用碳纤维板作为预应力筋材,通过特殊的张拉、锚固装置,对碳纤维板施加预应力并锚固于加固桥梁构件上,与之粘贴以承受拉应力。预应力碳纤维板加固桥梁技术,将体外预应力的主动加固优点与碳纤维材料高强度性能结合在一起,可大大提高碳纤维材料的利用率,能在一定程度上愈合既有桥梁的裂缝,大幅度提高加固构件的极限承载力。
近日,在江苏省宁常镇潥高速公路通济河大桥的加固工程中,就应用了预应力碳纤维板加固技术。
工程概况
通济河大桥位于半径=6000m的平曲线上;本桥上部结构为(4×25m)+(5×25m)装配式部分预应力砼连续箱梁+18m简支箱梁异性块+(5×35m)装配式部分预应力砼连续箱+18m简支箱梁异性块+(6×25m)+(5×25m)装配式部分预应力砼连续箱梁,桥面宽度35m,下部结构为桩柱式墩台。除箱梁异性块,其余上下部结构均采用2003年版本通用图,25m组合箱梁梁高1.4m,35m梁高1.8m,底板、腹板厚度均为450px。全桥设D80、D100、D160三种规格的伸缩缝,桥梁设计荷载为:汽车-超20级,挂车-120。
桥梁病害
通济河大桥在2015年定期检查后,对全桥病害进行了维修,组合箱梁梁体及端横梁、湿接缝裂缝均已进行了封闭处理。本次检查中发现桥梁仍有病害存在:
1.组合箱梁跨中腹板新增25条竖向裂缝,缝宽约0.05mm~0.10mm,总长约18.1m。
2.组合箱梁跨中底板共有5条横向裂缝,缝宽约0.04mm~0.05mm,总长约4.9m。
部分组合箱梁底板横向裂缝及腹板竖向裂缝现场照如下图所示。

(图1)左幅19#孔2#梁内腹板竖向裂缝延伸至梁底

(图2)左幅21#孔3#梁内腹板竖向裂缝延伸至梁底
3.其余病害:检查中另发现部分常规裂缝,砼破损,锈胀露筋等。
维修加固方案
1.本桥出现的组合箱梁腹板竖缝及底板横缝缝宽均<0.15mm,不对其进行封缝处理。本次设计一方面拟对底板粘贴预应力碳纤维板,增加梁体的压应力,延缓底板出现裂缝的时间;同时对腹板粘贴钢板、双向碳纤维网格,增强梁体的抗剪承载能力,限制腹板裂缝产生和发展,相关构造如下图所示:

(图1)25m组合箱梁加固示意图(单位:cm)

(图2) 35m组合箱梁加固示意图(单位:cm)
2.顺桥向在组合箱梁底板张拉两条单层碳纤维板,碳纤维板厚度3.0mm、宽度50mm,预应力碳纤维板通过固定端与张拉端的钢构件与组合箱梁底面连接,钢构件采用Q345钢材,钢构件表面采用整体镀锌防锈处理;固定端和张拉端钢构件与梁体采用M16高强锚栓连接。锚固位置位于梁端约L/6处,设计过程中已对锚固端和张拉端混凝土局部应力进行分析,确保混凝土不会开裂。
3.碳纤维板张拉施工完毕,在腹板相应位置粘贴4mm厚、375px宽的钢板条,长度为跨中10m范围,两侧腹板各粘贴2条钢板,钢板按手工涂胶法进行粘贴。
4.其余病害处理(除箱梁腹板竖缝及底板横缝):对缝宽≥0.15mm的裂缝进行灌缝处理,对<0.15mm的裂缝进行封缝处理,砼破损的采用轻质砂浆进行修补,锈蚀露筋的进行除锈阻锈处理。
该项目隶属于大型桥梁养护国有企业-----江苏现代路桥有限责任公司。该公司主要经营路桥项目的工程养护,因为之前对预应力碳板的粘贴功效不甚了解,多方考察后决定选用我司预应力碳纤维板进行粘贴加固。现场施工图如下:
施工图纸

施工张拉示意图

施工参数表

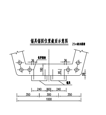
锚具锚固位置截面示意图
为协助配合通济河大桥顺利加固施工,我司经理作为技术指导去到了施工现场。从定位、安装、到张拉,上海悍马预应力碳板经受住了重重考验,顺利张拉成功。
前期准备

锚具材料

千斤顶

搭设脚架

安全防护
安装施工

定位放线
1.定位放线。按图纸进行精确的放样模具在实地的位置,用墨斗弹出线。建议先弹出梁中心线,再从桥墩中心量出模具的位置,要考虑伸长量。
2.钻孔。当钻孔与钢筋位置发生冲突时,适当调整孔位,钻孔时应垂直梁体,钻孔深度不少于250px,根据板底的厚度决定。
3.种植锚栓。植高强螺栓,螺杆等级建议10.9级以上,植筋胶要饱满包裹螺栓,顺时针旋转放入孔眼中。固化期间不能扰动,凝固后才能上紧锚具螺栓。

开槽1

开槽2
4.开槽。深度2~75px,长度略长于固定端及张拉端的限位框10~500px,开好槽后再修补内表面平整。
5.修整。开好槽后,用快凝材料修补,并磨光确保表面平整,以保证锚具更平整的安装。

打磨

种植螺杆

安装固定端

安装张拉端
6.安装限位框。安装限位框{固定端和张拉端}、锚块、高强螺杆、螺母。4个,8.8级以上。

安装张拉杆
7.安装锚块。固定端锚块侧面螺栓强度建议用12.9级以上,锚块两端的楔形孔小孔均是朝内,高强螺杆,建议用10.9级以上。

放碳板

安装碳板
8.安装碳纤维板。板裁剪长度每端多5~250px,张拉端锚块顶在限位框最前端为准,从小口往大口装,并用夹片夹紧。

安装千斤顶
9.安装千斤顶。卡套挂起千斤顶,装千斤顶前方的挡块,螺母4个,并调整至顶紧,千斤顶中心线跟拉杆中心线对齐。

千斤顶张拉
10.涂碳纤维板胶。用刮板涂一面,保证涂抹均匀。
11.预应力张拉。逐级张拉,间隔3~5分钟进行下级张拉,并用螺丝固定张拉单元,对称拧螺母,持荷5分钟,卸载,拆除千斤顶。
12.碳纤维板加压。每隔2米安装一个压片(用膨胀螺栓固定)。

碳板张拉
对于技术指导员施经理来说,上海悍马预应力碳板就像自己的孩子一样,能够亲眼看着它从“出生”到“成才”,这种感觉无以言表。预应力碳板粘贴成功后,他发文感慨:两天工地的生活,似曾回到了十多年前的搬砖生涯,与工人同吃喝,以及那个献给包工头的青春;记不清走过了多少工地,但记得每个工地都一样,它的脏,它的尘,它的简陋和它那没有隐私的宿舍,以为自己不会属于这里,才发现自己从来就没有不能适应它,更未离开这里;往事如烟,往事又并不如烟,但往事终究如烟!今天依然走在满是尘土的工地,满眼都是我们的材料,成堆的锚具,和那刚刚张拉好的预应力碳板,犹如,工地静待风吹雨,悍马材料入梦来,青春没有试加载,人生必须预应力。
是的,上海悍马预应力碳纤维板如同倔强的悍马人一样,性能优良。悍马预应力碳纤维板加固系统,由预应力碳纤维板和两端刚性锚具组成。通过两端锚具的夹片夹持向预应力碳板施加预应力,使碳板锚固在混凝土上,这样就沿结构件受弯拉的方向对混凝土施加了预压应力。可消除或减缓后加构件的应力滞后现象,使其与原构件一起工作。缩小原构件的裂缝宽度,甚至使其完全闭合,推迟混凝土裂缝的出现和开展。大幅度提高梁板的承载能力,达到真正意义的加固。
宁常镇溧高速通济河大桥加固工程,这是上海悍马预应力碳纤维板加固在苏南地区的第一次尝试,也是一个新的开始。上海悍马的产品及服务将是最好的广告,时间可以见证我们的努力!未来,路在哪里,悍马人就一定会在哪里,悍马的产品就在哪里。我们始终如一,做最好的产品,提供最优质的服务,让悍马的品牌响彻全球!








