
-
设计年限50年,产权70年,房屋寿命该怎么算?[11-03 16:32]
在详细论述前先给出结论,不管是50年还是70年,都不是房屋的真正使用寿命。房屋设计使用年限,是设计规定的一个时期,在这一规定的时期内,只需要进行正常的维护而不需进行大修就能按预期目的使用,完成预定的功能,即房屋建筑在正常设计、正常施工、正常使用和维护下所应达到的使用年限。现行国家标准《建筑结构可靠度设计统一标准》(GB50068-2018)中明确规定,普通房屋和构筑物,设计使用年限为50年。房屋产权年限,指房屋建筑产权的归属年限,包括:民用住宅建筑,商用建筑,工业用建筑。按建筑用类型有所不同,根据《中华人民共和国城

-
精彩回顾|第九届江苏省工程结构鉴定与加固改造学术会议圆满落幕[11-02 16:54]
10月31日,第九届江苏省工程结构鉴定与加固改造学术会议在江苏常州圆满落幕,上海悍马建筑科技有限公司作为协办单位受邀出席。大会邀请了众多在工程结构和鉴定领域杰出的权威专家作主题发言,围绕城市更新、减震隔震、古建筑加固等议题进行深入探讨。上海悍马建筑科技有限公司技术总监、同济大学博士后研究员谭成带领团队出席此次会议,并作《碳纤维盖梁加固实验研究与工程实例》主题报告,与来自五湖四海的专家学者、行业人士们展开友好交流。上海悍马还在现场开设展位,展示了碳纤维布、预应力碳纤维板、植筋胶、网格布、粘钢胶等主打产品,吸引众多嘉宾

-
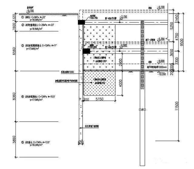
详解|基坑加固如何处理[10-28 17:16]
基坑工程中,当场地内存在较为软弱的土层时,为了增强基坑支护体系的稳定性、控制周边围护结构的变形、给现场施工和土方开挖创造条件,可以考虑进行基坑土体加固。基坑土体加固主要指在基坑开挖施工期间发挥作用的临时性地基处理,意在改善土体的物理力学性能、提高被动区土体抗力、减小基坑支护结构的变形或增强基坑的稳定性。基坑土体加固通常采用搅拌桩、高压旋喷桩、注浆、降水等方法。基坑工程中应根据场地地质条件、周边环境的变形控制要求以及土方开挖的方式等情况,进行基坑土体加固的设计。按照土体加固的用途不同主要划分为以下几类:一基坑周边被动

-
倒计时4天|2021上海国际城市与建筑博览会即将开幕![10-25 17:21]
2021城博会将以“韧性城市,低碳生活”为主题,聚焦一体化建设、品质化提升、数字化转型、安全韧性发展,通过展览展示撬动全产业联动,积极推动重大工程、重点区域、旧区改造、美丽社区、智慧物业、基础设施等市场需求,聚焦碳达峰、碳中和与建筑业的有效衔接,满足市民群众对美好生活的追求。上海悍马将在现场搭建专属展位,欢迎大家莅临。会议概况 2021年10月29日-31日 上海浦东新区博成路850号世博展览馆 会议组织主办单位:联合国人居署、上海市住房

-
使用指南|悍马加固设计软件[10-21 16:44]
悍马加固设计软件为上海悍马建筑科技有限公司自主研发的在线结构加固设计软件,以《混凝土设计规范》、《混凝土加固设计规范》等规范标准为依据,进行混凝土构件的加固设计计算。软件核心功能为根据原构件参数及加固要求生成加固方案或验算已有加固方案是否满足加固要求,并提供详细计算过程的计算书。本文通过一个算例,介绍悍马加固设计软件的功能及使用流程。算例某混凝土梁,混凝土强度为C30,截面尺寸b×h=200mm×500mm;纵筋及箍筋均为HRB400,梁下部为4根16mm钢筋,梁上部为2根14mm钢筋;箍筋

-
全国建筑物鉴定与加固改造第十五届学术交流会议顺利展开[10-19 17:12]
2021年7月22-24日,第三届全国在役桥梁安全运营保障技术大会顺利召开。上海悍马建筑科技有限公司受邀出席,技术总监谭成博士在大会作主题报告。本届大会由同济大学土木工程学院桥梁工程系和桥梁工程与技术网联合主办,国联云桥梁直播平台,北京国联视讯信息技术股份有限公司承办。上海悍马在现场开设展位,与来自五湖四海的专家学者、行业人士们展开友好交流。现场展示碳纤维布、预应力碳纤维板、改性环氧注射式植筋胶、碳纤维网格布、3D施工视频等,吸引大批人员驻足观看和咨询,成为展会上的一大亮点。会议围绕“安全检测与评估&r

-
直击现场|全国建筑物鉴定与加固改造第十五届学术交流会议火热进行中![10-18 16:26]
大会现场10月16日,全国建筑物鉴定与加固改造第十五届学术交流会议在河北张家口顺利开幕。 此次活动由中国工程建设标准化协会建筑物鉴定与加固专业委员会主办,清华大学土木工程系承办,上海悍马建筑科技有限公司主协办,悍马技术总监谭成博士率队前往,并作为协办单位代表在开幕式上致辞,与大家展开友好交流。谭成博士在开幕式上致辞中国工程院院士、学术委员会主任聂建国,中国工程院院士岳清瑞,四川省建筑科学研究院有限公司党委书记、董事长王德华,同济大学副校长顾祥林,中国建筑科学研究院有限公司原副总工、国家建筑工程质量监督检验

-
悍马“钓鱼杯”|当土木工程老师放下教鞭,拿起鱼竿……[10-14 17:16]
10月10日,为增加教职工交流,并为学校钓鱼比赛选拔队员,南京林业大学土木工程学院工会组织举办“悍马杯”第一届土木工程学院钓鱼比赛,上海悍马建筑科技有限公司作为本次比赛的赞助商,应邀出席。钓鱼比赛在六合竹镇兄弟家庭农场举行,学院共派出11位教师积极参与。为保证公平,比赛特邀校钓鱼协会会长粟宁奕作为裁判长。经过四个小时的垂钓,大家收获颇丰,鱼获喜人。最终吕伟华、王大明、胡亚风、姜元中、王海燕五位老师获得一等奖,王大明老师获得单尾最重奖。上海悍马赞助了精美的钓鱼竿作为奖品,比赛结束后,悍马技术总

-
“限工令”来袭!7省65城受影响,某加固公司表示要歇到明年……[10-11 16:34]
最近,听到不少加固公司的“吐槽”,由于“限工令”的影响,手头上不少项目已经停工或者延期,很有可能到明年才能复工,有客户自嘲:“这国庆假期一放就放到过年了。”这一切都源于生态环境部发布的《重点区域2021-2022秋冬季大气污染综合治理攻坚方案(征求意见稿)意见的函》。今年受停限影响地区涉及7省65市,比去年新增加26个地市,管控范围包括了京津冀、河北、河南、山东、山西、陕西大部分地区。工程行业管控措施主要如下:1. 强化扬尘管控,各城市平均降尘
-
告别Excel计算表格!一键生成详细计算书!悍马加固设计软件上线啦![09-29 16:17]

-
这方面的奖,悍马拿到手软![09-28 16:16]
近日,上海悍马又双叒叕获奖了,获得了由中国保护消费者基金会-3·15系统工程建设办公室颁发的“3·15诚信体系放心单位”。上海悍马自2006年成立以来,始终秉持“诚信为本,客户第一”的价值观,十六年专注从事混凝土结构加固材料的研发、生产、销售与服务,并以“制造最高品质的加固材料,消除混凝土结构安全隐患,挽救生命和建筑”为企业使命。在企业诚信方面,悍马始终如一,在收获众多客户良好口碑的同时,还荣获了“中国诚

-
植筋加固效果不好?可能问题出在这里![09-03 16:43]
植筋加固是一项针对混凝土结构较简捷、有效的连接与锚固的技术,可植入普通钢筋,也可植入螺栓式锚筋,现已广泛应用于建筑物的加固改造工程。在植筋加固过程中,会出现一些因素扰动植筋加固的效果,如果出现了问题,我们可以从以下几个角度来考虑,从而给出相应的解决办法。影响植筋加固的四大因素:钻孔孔径、钢筋直径、植筋间距、植筋深度01钻孔孔径钻孔时冲击钻应与混凝土表面垂直,钻孔直径尺寸误差应在+2~+6mm之间,钻孔必须进行清理,保证孔内无尘、干燥、且孔深孔径经验收满足设计要求后才能进行下一道工序施工,在潮湿环境或在地下水位以下施

-
【悍马案例】坐标上海“中华商业第一街”——华为全球最大旗舰店加固[09-02 17:05]
华为全球旗舰店于2020年6月24日正式开业,坐落于“中华商业第一街”南京东路的南京大楼,营业面积近5000平方米,是华为迄今为止全球最大的旗舰店。1850年,南京东路、河南中路拐角附近的80亩土地被辟作花园,环绕花园筑成一条“老花园跑马场”,外滩通往跑马场的小道被修整为“花园弄”,商贩们争相来到这个地段,渐渐形成浓厚的商业氛围。1935年,犹太富商哈同在此建成哈同大楼,即南京大楼的前身。1904年,电信巨头西门子在此开设办事处,签约了它在中国

-
棚改变旧改,一字之变,要变出什么来?[08-30 16:01]
上海产业转型发展研究院首席研究员原中共宝山区委常委、副区长夏雨“有人统计,我们盖的房子太多了,按总量的话,人口翻几个倍才能住的下。”“大量的资源浪费,所谓城市发展,造成了‘空城’、‘鬼城’,出现大量空置闲置。”房地产市场从增量时代转向存量时代已经成为业界共识,而存量市场最大的蛋糕莫过于城市更新。城市更新涉及三个方面:产业空间的更新公共空间的更新居住空间的更新产业空间的更新比如老旧厂房更新为创意园,文化园区等。公共空间的更

-
助力碳纤维发展!悍马亮相宝山区重大产业项目集中签约仪式[08-27 17:04]
8月26日上午,2021年宝山区重大产业项目集中签约仪式在宝山区保集E智谷举行,宝山区委书记陈杰,宝山区委副书记、区长高奕奕,宝山信委二级巡视员蒋玮,宝山区副区长翟磊等领导嘉宾、院士、企业代表出席。韩松总经理代表上海悍马建筑科技有限公司参加签约仪式。宝山区副区长翟磊主持仪式此次宝山区大力发展的先进材料类项目共计四个,涵盖建筑新材料、纳米新材料、碳纤维新材料、特种气体等多种新材料产业领域,累计投资额达13亿元,上海悍马在碳纤维新材料领域投资超一亿元。韩总经理认真聆听会议报告韩总经理代表悍马上台签约(一排右二)中共宝山

-
赶超计划!国内碳纤维生产企业正在蓄力中[08-25 16:32]
2021,喜报连连。多家碳纤维上市公司出具财报,业务收入表现高增幅。(2020由于疫情原因,暂不作比较。)(东丽公司为碳纤维生产全球领先的行业巨头)值得关注的是2019财年第一季度东丽公司业务收入为5132亿日元(2021同期为5137亿日元),表示公司2021财年第一季度的业务收入已经恢复至新冠疫情爆发前水平。(光威复材是国内碳纤维行业品种最全、技术最先进、产业链最完整的龙头企业)2021第一季度,光威复材营业总收入6.25亿,相比于2019年同期4.35亿,增幅达到43.7%。(赫氏复材是先进复合材料及技术的全

-
老旧小区加固改造——让老百姓住好房[08-24 16:30]
“看着老房子一天一个样儿,心里就踏实。”无论是老旧小区改造还是棚改安置房建设,出发点只有一个,就是让老百姓“住好房”。2015年,中央城市工作会议上,要求加快老旧小区改造;2016年2月,《中共中央国务院关于进一步加强城市规划建设管理工作的若干意见》提出有序推进老旧住宅小区综合整治;2019年6月,国务院召开常务会议,部署推进城镇老旧小区改造,顺应群众期盼改善居住条件,明确要求推动建立小区后续长效管理机制,并将老旧小区的改造工作上升到国家的高度;2021年8月11日,

-
碳纤维布毛丝怎么解决?[08-23 16:39]
近年来,我国的碳纤维生产技术和产品质量得到长足的发展,特别是企业已经进入了快速的发展阶段。然而目前碳纤维产品普遍存在毛丝率高的问题,导致碳纤维的应用受到了限制,制约了碳纤维产业的质量提升。 小悍和大家来分析一下碳纤维产品出现毛丝的原因:01原丝杂质和缺陷原丝的缺陷主要包括内部孔洞、内部裂纹、表面裂纹和机械损伤等。这些缺陷的存在必然导致原丝强度下降。纺丝液中残留的引发剂、低聚物以及尘埃颗粒在以后的工序中,或传递、或挥发形成孔洞缺陷,在施加张力时产生毛丝;预氧化和碳化过程中,在张力作用

-
织机中的劳斯莱斯——高品质碳纤维布背后的高科技[08-19 16:25]
图片来源:www.lindauerdornier.com1919年6月28日,德国签署《凡尔赛合约》,宣告第一次世界大战正式结束。合约对德国的军备进行了严格的限制,海军不得超过1.5万人,陆军不得超过10万人,不准有主力舰和潜水艇,不许建立空军,禁止拥有飞机、坦克、重炮等武器。世界著名飞机制造商多尼尔不得不重新定位,开始在二战后制造纺织机械。1967年开发的剑杆织机,1989年问世的喷气织机,是多尼尔一跃成为德国唯一一家有世界知名度的织机制造商的重要里程碑。 悍马公司于2014年引进德国智能生产线,发展至

-
亮相国际 | 上海悍马谭成博士即将参加国际先进复合材料桥梁结构大会[08-04 16:21]
第八届国际先进复合材料桥梁结构大会将于2021年8月5-7号在加拿大魁北克省舍布鲁克市举行。上海悍马谭成博士两篇论文入选会议,同时,谭成博士会就《CFRP增强盖梁延伸的试验研究》发表全英文演讲。时间地点2021年8月5日-7日 加拿大魁北克省舍布鲁克市主承办单位ExpACI(美国混凝土协会)ACMA(美国复合材料制造业协会)Crepec(高分子与复合材料应用研究中心)CSCE(加拿大工程学会)这次会议是围绕桥梁与结构这个话题举行的时间最长的系列会议之一。前几次会议的成功,(Sherbrooke, 1992

-
上海悍马亮相第五届全国既有建筑加固与改造技术交流会暨中国建筑节能协会工程改造与加固分会年会[08-03 15:34]
2021年7月29日-7月31日,第五届全国既有建筑加固改造技术交流会在古城西安顺利召开。上海悍马建筑科技有限公司作为协办单位出席了本次会议,并在现场开设展位,马正兴工程师在大会上发表演讲“结构加固设计工具应用技术研究”并与领导嘉宾展开友好交流。









