承重墙指支撑着上部楼层重量的墙体,对建筑整体结构非常重要。怎样在没有图纸的前提下分辨承重墙和非承重墙?
虽然建筑结构的类型有很多种,但具体到住宅,种类就很少了。主流的结构体系不外乎三种:砌体结构、剪力墙结构、框架结构。空泛的讨论不容易说明问题,现就三种结构各举一个例子,以示问题的复杂性,以及随便砸墙的后果的严重性。
砌体结构
砌体结构是最常见的住宅结构体系,90年代之前修建的、方方正正的、5层到6层的、老工房或者筒子楼或者单位福利房或者宿舍楼,基本都是砌体结构,或者俗称的“砖混”结构。

上图是一个比较典型的砌体结构住宅,两室两厅。图中涂黑的方块是钢筋混凝土构造柱,里面有钢筋,这些是肯定不能破坏的。其余所有淡显填充的墙体,都是砌体剪力墙,原则上,这些也都是不能破坏的。混凝土构造柱和砌体剪力墙,构成了整个竖向结构体系,承载所有的结构荷载。

为方便大家看图,现把天花板设置成透明,大家可以跟上面的平面图对照一下。灰色的是混凝土,红色的是砌体。砌体墙与透明楼板之间,是混凝土圈梁。事实上,每一片墙体都在为结构贡献抗侧刚度。有的人可能会说,“我就拆一点点墙体,没事的”。的确,拆一点点墙体,房子是不会塌下来,但是,地震的时候,可能刚好就差那一点点侧向承载力。大自然是很残酷的,这一点点承载力的差异,导致的可能就是地震中幸存与倒塌的区别。
不光不能拆墙,也不能拆构造柱,也不能破坏楼面梁和圈梁,更不能加墙。这些砌体结构的设计承载力本来就很勉强,有些楼板还是预制空心板,甚至个别的还有木楼板。千万不要在楼板上加砌砖墙!轻则楼板开裂,重则楼板坍塌,非常可怕。
剪力墙结构
随着市场需求的增加,5、6层的砌体结构已经不能满足要求了。90年代中后期开始出现的高层住宅,大量采用了混凝土剪力墙结构。基本上,9层、10层往上直到30层乃至更高的住宅全都是剪力墙结构。

上图是个比较典型的剪力墙结构住宅,两室两厅,基本上是一梯三户的中间那一户。图中涂黑的墙体就是钢筋混凝土剪力墙,一定不要破坏。斜线填充的是砌块墙体,原则上并不起结构作用,所以可以适当的改建。

就像上图所示,灰色的是混凝土,红色的是砌体填充墙。注意,不仅仅是混凝土墙体不能破坏,混凝土连梁、楼面梁都不能破坏。注意看,填充墙上方一般都有混凝土连梁,千万不要把混凝土连梁一并砸掉,否则后果非常严重。

通俗的说,这张图显示的是混凝土主体结构,对比一下上下这两张图,下图少掉的红色墙体,就是可以拆除的部分。当然,跟砌体结构一样,拆填充墙可以,但是不要随意的加填充墙。如果一定要加,也跟砌体结构一样,用轻质墙体,不要砌砖。

一些低烈度地区的住宅,或者层数比较低的住宅,可能采用了框架-剪力墙结构。当然,这种框剪并不算典型的框剪,大多数还是“带少量框架柱的剪力墙结构”。跟剪力墙结构的区别,就是把部分比较长的L形的墙体换成了方柱子,别的地方区别并不大。剪力墙或者框剪的填充墙,最好还是不要改动。填充墙虽然不作为结构构件,但它本身却贡献着抗侧刚度。随意的拆改,容易造成平面和竖向的刚度不均匀,对抗震不利。此外,现在的建筑设计一般都比较合理,没有必要大拆大改,浪费时间精力,效果可能还不如最开始的好。
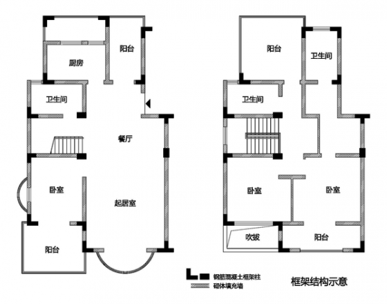
框架结构
框架结构主要是新建的6层以下的住宅,以及独栋、连排、叠加别墅和洋房等,细分的话,还可以分成普通框架和异形柱框架,但其实都差不多,所以就不分开说了。

上图是一个典型的花园洋房跃层住宅,采用的是混凝土异形柱体系,带有少量的普通框架柱。图中涂黑的就是钢筋混凝土框架柱,矩形的是普通框架柱,L形的、T形的是异形柱。

把上层的天花板设置为透明,这就是这套跃层住宅的样子。方便起见,门洞上方的混凝土过梁没有画。同样,灰色的是混凝土,红色的是砌体。那么,哪些部分是可以拆除的填充墙呢?

很简单,所有红色的填充墙都可以拆除,上图就是拆完的样子。注意,只能拆填充墙,一定不要破坏墙体上方的灰色混凝土梁。相对来说,框架结构没有结构墙体,所以改建的自由度很大。但是,同样也请注意,拆完之后不能随意的加砖墙。另外,自己改建的时候也要注意施工安全,新建的墙体也要做好可靠的拉结措施,防止将来倒掉伤人。虽然是轻质墙体,万一倒了也很麻烦,比如地震的时候玻璃隔断倒了,即使没砸到人,可能也会影响逃生的速度,甚至可能会阻断逃生的路线。
总结
一般情况下,不建议随意改动、拆除墙体,如果一定要改,也要视具体情况而定,并采取必要的加固措施,保证结构的安全。
原文链接http://www.shhorse.com/Article/nrsszczqm_1.html
(本文来源于网络,悍马加固整理报道,如有侵权,请联系删除。另,转载请注明出处,否则后果自负。)








